• First Floor Addition

    Cecil Hills

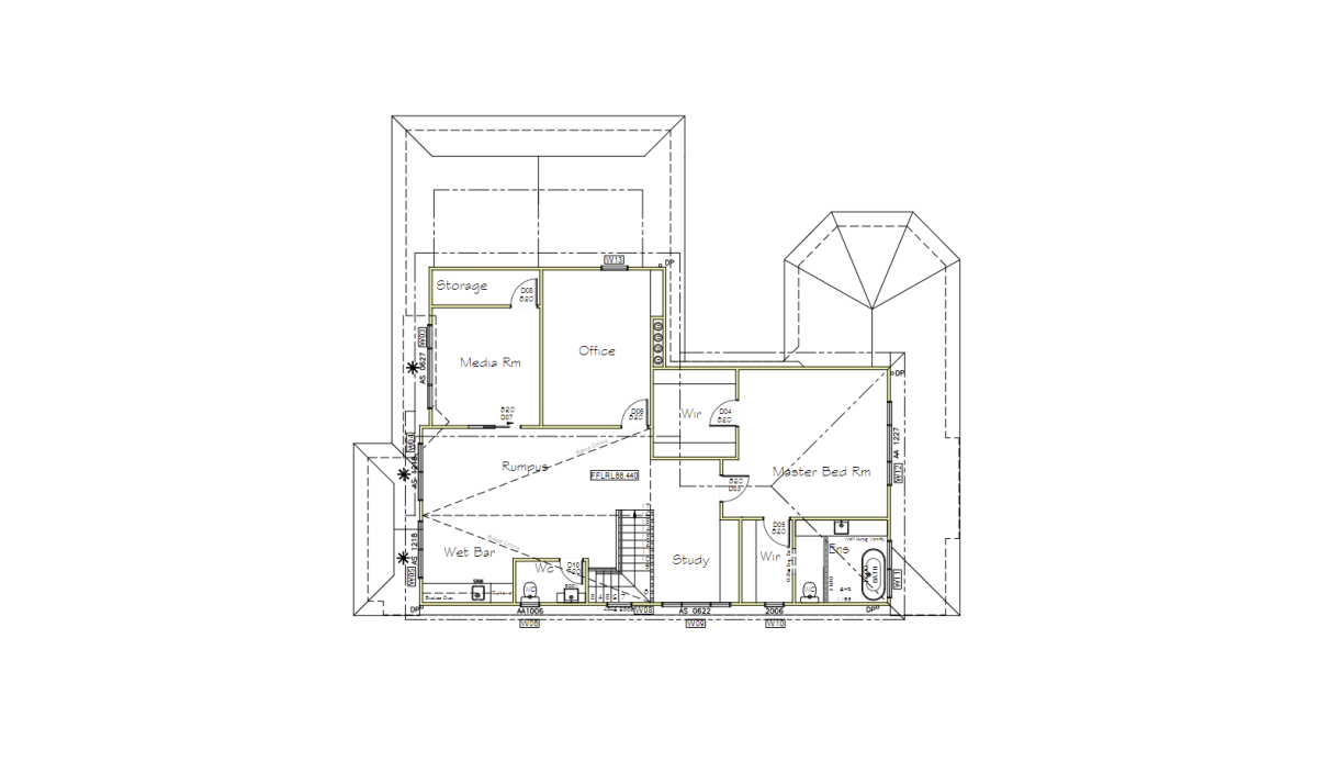
First Floor Addition in Cecil Hills

Guide Price: $450K – $500K

Size of addition 135m2

We added more room to this home in Cecil Hills. With plenty of room to enjoy, the home now consists of an additional 1 bedroom, 2 offices, 1 media room, 1 bathroom, 1 WC, and 1 rumpus with a wet bar.

This property also features:

  • Raked ceilings to the rumpus room

Before

Second Storey Addition - Cecil Hills - Before

Planning

After

Get Your FREE Guide Price

Our Projects

CHECK OUT OUR PROJECTS

Our Clients

WHAT OUR CLIENTS SAY ABOUT US

Contact Us

CONTACT US ABOUT YOUR PROJECT

Testimonials

  • We completed our extension with 32 degrees building in 2022. I have nothing but praise for their work. The whole process went to schedule and their communication was fantastic. We are so happy with the finished product and cannot praise them more highly.

    - Leah and Devin, Second Storey Addition, Bundeena

  • Really enjoyed the 32 degrees building experience. We got a lovely second floor addition built in a very fast time.

    They kept the place clean, no skips, just regular visits with their rubbish removal truck that was great.

    We lived in the property for the duration of the work, and they were always courteous and considerate.

    They did lots of little extra things to go that extra mile, and put up with my daily questions.

    Was a really great experience, and the result was better than I had imagined, so really pleased.

    Also they were VERY cost competitive compared to many other quotes that I had received.

    - Mark, Second Storey Addition, Dover Heights

  • Absolutely I would recommend 32 Degrees. They built us a wonderful new dining room and new kitchen. Just amazed at how they can build around us almost without disruption. Brilliant communication. Even other tradespeople commented on the quality of the work.

    - John and Alex, Renovation, Narellan Vale

  • 32 Degrees recently completed a first floor extension on our property in Drummoyne. We were so impressed with the speed and quality of work and couldn’t be happier with the end result. The process was smooth right from our first consultation and communication has been wonderful every step of the way. The tradesmen on site were lovely and respectful and were easy to talk to if we had any questions or concerns. We would recommend to others and have already recommended their services to friends in the area. Thanks again guys!!

    Click to view gallery

    - Vanessa & Phillip, First Floor Addition, Drummoyne

  • 32 degrees completed an extension of our home in late 2018. Right from the start, we felt the process ran smoothly and were constantly kept updated on what was happening. They were extremely organised, which ensured that the job was completed on schedule. We had a fair bit of rain during the build process, however, the boys were fantastic at keeping the mess to a minimum and protecting the house. We are extremely happy with the end result and receive many compliments on the job that was completed. Thank you 32 Degrees.

    Click to view gallery

    Ground Floor Extension - Moorebank 14

    - Melissa & Andrew, Ground Floor Extension, Moorebank

  • It is without any hesitation that my husband and I wholeheartedly endorse the work of 32 Degrees. We have recently finished our first-floor storey addition of 92sq/m and found the team to be united, professional, approachable and dedicated.
    Our addition is constantly commented upon by strangers who cannot believe the outdoor street appeal and fast timeframe for completion (12-14 weeks). Inside, finishes are impeccable and we are constantly in awe of the transformation. Having young children and living on-site was an initial concern for us when considering an addition, however, the reliability, kindness and consideration given by the whole 32 Degrees team, through all different phases, was wonderful and greatly appreciated. It was an enjoyable and positive experience for our family. We would highly recommend 32 degrees to anyone looking for expert knowledge and skill, integrity and collaboration in their upcoming build.

    Click to view gallery

    - Ben and Katie, First Floor Addition, Raby

  • Would definitely use them again. No hesitation in recommending them and have already done. Prompt, responsive and caring. They completed the work in the time it was taking to even get a quote and did a great job to boot.

    - Zeke and Robin – First Floor Addition, Robertson

  • We were happy with your communication in particular as we were keen to keep abreast with the work done. We thought the administration staff were very polite and positive with responses and the team labouring at the house were helpful and informative.

    - David and Jenny – First Floor Addition, Bowral

  • Fantastic company to work with. 3 bedrooms, 1 bathroom and 1 living room second storey addition in 10 weeks with great quality. Best thing was the constant communication keeping me in the loop, both builders & admin team have been awesome. Thanks heaps to the entire team!

    After Second Storey Addition Jordan Springs

    - Michael – First Floor Addition, Jordan Springs

  • We had the best experience working with 32 Degrees. From day one the process was easy every and tradesperson that came through was helpful and a pleasure to work with. The communication was amazing from start to finish and post build support has been great. We cannot recommend these guys enough.

    Click to view gallery

    - Vivian – First Floor Addition, Lakemba

  • We had such a great experience with 32 Degrees. They were very professional and transparent in all their dealings with us. We found them to be very reliable and they delivered on time. We are very impressed with the quality of the work done and highly recommend them to anyone wanting to add a second story to their existing home.

    - Sam & Angela – First Floor Addition

  • For us, this has been years in the planning and as you can imagine it is so much more than just a house. Because of you all, we now have the beautiful home we have dreamed of. Thank you for being so hardworking, reliable, honest, trustworthy, dedicated, and polite and determined to meet my (extremely!) high standards with an ever growing list of things to check on. To say we are happy would be a massive understatement!

    - Trent & Julianne – Ground Floor Extension, Picton

  • From the first time you came to our house, you were everything we wanted in our builders – and more! At every stage throughout this process we have felt very looked after and in VERY capable hands. All of your suggestions turned out to be spot on with our taste and in so many aspects it has turned out even better than we imagined.

    - Trent & Julianne – Ground Floor Extension, Picton

  • The team were very friendly and respectful of multiple people still living in the house. The quality and workmanship we have received is definitely reflective of the price and I would definitely use 32 Degrees Building again and happily refer them to others seeking an addition to their home.

    - Rob – First Floor Addition, Harrington Park

  • I haven’t built before and didn’t really have any idea of what was involved and I wanted a builder that could look after everything for me, from start to finish without any hidden costs. I found that the reality of the build was beyond my expectations – I didn’t have any issues with noise or dust and the 32 Degrees Building Team were brilliant.

    - Rob – First Floor Addition, Harrington Park

  • We have really been enjoying our beautiful new home that you built for us and we can’t believe how the time has flown! We had never done anything like this before but I THANK YOU for making the whole process smooth, enjoyable and fun….I really learnt so much!

    - Nicci & Steve – First Floor Addition and Extension, Camden

  • 32 Degrees Building completed our dream home and delivered on everything we’d hoped for. None of our friends can believe how quickly the project was completed and everyone is in awe of the quality of the build. An absolutely pleasant and professional experience throughout.

    - Deanne & Tim – Custom Home, Thirroul

  • I chose 32 Degrees Building as the team showed urgency and were responsive to my requests. Time was an important factor for me to complete the build and knowing I would have a Project Manager looking after the project made the decision easy for me.

    - Josette – Church Renovation & B&B

  • 32 Degrees Building completed an extension and renovation of our heritage listed home in Bulli in February 2018.  

    Before we engaged with 32 Degrees, finding a builder had been an absolute nightmare for us. Many would come for an onsite appointment but then not send a quote, some wouldn’t even bother showing up. Not being happy with our local options, we decided to look outside our immediate area and after some online research found 32 Degrees Building. 
    32 Degrees’ initial price guidance range was within our expectations so we proceeded to get a full quote and were very impressed to receive it just two days after our appointment with Alistair! The quote itself was detailed, clear to understand and reasonable when compared to other quotes received.

    After initially expecting to start in January 2018, 32 Degrees rescheduled their work to get us started at the end of October 2017 and we were at lock up before Christmas. This was a pleasant surprise since many builders were talking of a 6-12 month wait to start the job. They completed their part of the job in February, which was in line with our expectations and also faster than indicated by most other builders we had spoken with. Variations were reasonably priced and only incurred as options that we requested during the construction phase.


    During the build, Denny our project manager and Cameron our supervisor were excellent to deal with and always available to answer questions. They were flexible and also gave valuable suggestions to parts of the job that required decisions or where we wanted to change something. Additionally, all of 32 Degrees’ tradesmen were very friendly and our neighbours even commented on this to us.


    Victoria and Rosie provide fantastic client support through the whole process. We were always able to reach someone at 32 Degrees when the need arose. Since we have moved in 32 Degrees has also been very responsive to any issues that arise. We appreciate that they do not forget about you once they have been paid.


    Overall, we were most impressed by their professionalism, speed and quality. The complete transformation of the house blew us away and has changed the way we live, all for the better. Everyone that has seen the house has also been really impressed by the quality of the work and how it turned out.


    We would definitely work with 32 Degrees again on future building projects and have not hesitated to recommend them to family and friends.


    The Lemme family
    Testimonial from The Lemme Family

    - The Lemme Family – Ground Floor Extension, Bulli

  • I found 32 Degrees Building via Google and contacted them. I had Alistair, the builder travel down to meet with me to discuss my Church conversion/renovation. I was really happy that the quote was received as promised within 2 days of meeting with him. I chose 32 Degrees Building as the team showed urgency and were responsive to my requests. Time was an important factor for me to complete the build and knowing I would have a Project Manager looking after the project made the decision easy for me. They were able to complete my renovation within 4 months (ahead of schedule) and to budget.

    Josette – Church Renovation, Robertson

    Click to view gallery

    Church conversion in Robertson

    - Josette – Church Renovation, Robertson

  • You guys really have gone above and beyond. Thank you so much for working so hard on our house. The house looks amazing, and the finished product is beautiful. It’s like a whole new house, it has really come together. I’m so excited to move back in.

    The Russell Family – Second Storey Addition, Elderslie

    This is a cladded second storey addition completed in Elderslie

    - The Russell Family – Second Storey Addition, Elderslie

  • We found 32 Degrees Building via a Google search and right from the start, when Alistair came out to meet us we felt confident in choosing him as our builder. He is so personable, nothing was a problem and we were impressed with the level of professionalism and the responsiveness he showed. We wanted an extension that had additional space for my mum to move in and the draftsman was forthcoming with ideas to provide us with a solution and get us what we needed. He was so easy to work with and I love that the rooms are hidden through the pantry door!
    During the build, the onsite team were ah-mazing, Anthony and Joel were real stand outs and made us feel like we were in good hands. We are so happy with the build, it all happened so quickly, and now that mum has moved in, we couldn’t be happier.

    Front view of home in Harrington Park where an attached granny flat was built at the back

    - Danielle & Rob – Ground Floor Extension, Harrington Park

  • After comparing a few builders online we contacted 6 builders, 3 of which returned quotes. From the start, we were really impressed with Alistair, he was very specific about what he could do for us and provided us with a quote within 48 hours of us meeting. When making our decision, we wanted to choose someone that we could trust and feel secure with being in our home for the duration of the build and a big tick for us was that Alistair had his own team of tradesmen and apprentices. Another important part was the communication between us, Alistair and the team. They were very responsive to all of our questions right from the start and this continued right throughout the build. We always knew what was happening and Denny responded to our questions quickly. The entire build process from start to finish went smoothly, Denny, Adam, Janey and the whole team were excellent, polite and professional and we even enjoyed the guys singing onsite throughout the day! We are really happy with the quality of the build and the timeframes in which everything was completed and have no issues recommending friends and family to contact 32 Degrees Building.

    - David & Krystal – First Floor Addition, Claremont Meadows

  • Hi Alistair, Denny, Cam and the team!
    Hope you are all well.

    We have really been enjoying our beautiful new home that you built for us and we can’t believe how the time has flown! I collected a few images along the way so I thought I would share these with you, I look back and can’t believe the chaos and crazy times.
    Alistair first said….” oh don’t worry a few months after you won’t even believe you’ve been through it!” You were right!….I still pinch myself that this beautiful new space is ours.
    We had never done anything like this before but I THANK YOU for making the whole process smooth, enjoyable and fun….I really learnt so much!

    Wishing 32 Degrees Building all the best for Sat night at the HIA Awards. We are honoured to be a finalist and believe you guys are so deserving of a big Win so fingers crossed.

    Best Wishes,
    Nicci, Steve, Livi and Bailey!

    - Nicci & Steve – First Floor Addition and Extension, Camden

  • “I haven’t built before and didn’t really have any idea of what was involved and I wanted a builder that could look after everything for me, from start to finish without any hidden costs. I found that the reality of the build was beyond my expectations – I didn’t have any issues with noise or dust and the 32 Degrees Building Team were brilliant, Denny (Project Manager) in particular was fantastic. The team were very friendly and respectful of multiple people still living in the house. The quality and workmanship we have received is definitely reflective of the price and I would definitely use 32 Degrees Building again and happily refer them to others seeking an addition to their home.”

    First floor addition, Harrington Park

    - Rob – First Floor Addition, Harrington Park

  • “32 Degrees Building have just completed our dream home and delivered on everything we’d hoped for. None of our friends can believe how quickly the project was completed and everyone is in awe of the quality of the build. An absolutely pleasant and professional experience throughout. We have no hesitation in recommending the team at 32 Degrees.”

    - Deanne & Tim – Custom Home, Thirroul

  • We were referred to 32 Degrees Building by a friend. We have an older style home and the goal of the project was to increase overall light and freshen up property as the period features were quite dark. We wanted to make the available space more usable and renovate the other rooms.

    Right from the beginning, Denny was fantastic. He was so clever and had such great ideas and solutions to make things work how I was hoping they would. There was no problem he couldn’t come up with a solution for. The team were very polite and well spoken, always on time and tidy. I felt very comfortable with everybody and they were very trustworthy, which is important when you have your home open to others.

    It was such a pleasurable experience working with such an ethical and professional company. There were times when I wished it would be over, but I am so glad I had a great company who took the time to get the finishes just right. The innovations were great, the quality is amazing, the end result just beautiful, and now that they’re gone I miss everyone! I would gladly recommend 32 Degrees to anybody looking for a builder.

    renovation pennant hills

    - Cathryn – Internal Renovation, Pennant Hills

  • We were referred to 32 Degrees Building by our architect in Wollongong. Everything was prompt and on time from the initial enquiry through to receiving the quote. We checked references and thought the feedback was good so we were happy to proceed, while still having a lot of the regular concerns about building.

    We expected the whole thing to be very stressful and a bit of a disaster, but it was actually very low stress. Denny and Cameron were on top of everything and we really felt that we could trust them to manage the project well. The whole team were great overall and always knew what was happening when and we do think that they delivered on everything they promised.

    Our tiny 120 year old miner’s cottage was originally earmarked to be a heritage extension, but when asbestos removal and demolition commenced it become obvious the existing older parts were severely dilapidated and it became mostly a new home as they were unable to save a lot of the heritage section. We are incredibly proud to have had our new home featured on Australia’s Best Houses too!

    - Luke & Ange – Heritage Rebuild / Custom Home, Scarborough

  • To Alistair, Denny and everyone that is part of 32 Degrees,

    Where can I start? From the day you were recommended to us, we had such high expectations and a great feeling about you. From the first time you came to our house, you were everything we wanted in our builders – and more!

    At every stage throughout this process we have felt very looked after and in VERY capable hands. All of your suggestions turned out to be spot on with our taste and in so many aspects it has turned out even better than we imagined.

    For us, this has been years in the planning and as you can imagine it is so much more than just a house. Because of you all, we now have the beautiful home we have dreamed of.

    Thank you for being so hardworking, reliable, honest, trustworthy, dedicated, and polite and determined to meet my (extremely!) high standards with an ever growing list of things to check on. To say we are happy would be a massive understatement!

    All of your boys have done you proud and we will go out of our way to recommend you to anyone in need of your services. While it isn’t enough, thank you so, SO much.

    Ground floor extension Picton

    - Trent & Julianne – Ground Floor Extension, Picton

  • We consulted a number of builders before settling on 32 Degrees. Their price was comparable to the others but first impressions count and Alistair was really likable and great to deal with right from the start. The team were hardworking, friendly and approachable and we were surprised by how easy it all was.

    Denny and Adam were fantastic project managers, always communicating with us and providing solutions to any issues along the way. We’re so happy with the quality of the finished work and it looks exactly how we wanted it to. We felt really comfortable and at ease through the whole process, and have already recommended 32 Degrees to our friends interesting in building.

    Ground Floor Heritage Extension Picton

    - Mark & Hannah – Ground Floor Extension, Picton

  • We got 5 different quotes before choosing 32 Degrees Building. Alistair was always very responsive and punctual, with the quote being detailed and clear so we felt comfortable going ahead. Denny was really easy going and very accommodating of what we wanted to do, a great project manager. We felt really well informed and everything was transparent and easy to understand.

    The boys worked very hard and efficiently, there was always something going on. They were always on time, polite and well spoken. We think the price is a definite reflection of the quality of work and are really happy with the finished extension. We’ve already referred a couple of our friends to 32 Degrees and would happily use them again in future.

    After pic of extension at Balgownie

    - Peter & Perri – Extension & Deck, Balgownie

  • We were referred to 32 Degrees Building from a friend who had had some work done by Alistair and the team. From the first time we met him, we liked Alistair. He was punctual and all communication was clear and prompt, and the price was very reasonable.

    We were a bit nervous about the build process. Having heard how much of a nightmare doing building work can be, we were expecting the worst but the whole job went really well and was completed in a timely manner. Denny and Adam were a pleasure to have as project managers, they were very approachable, polite and well spoken. There was nothing that was a problem, both were able to come up with solutions to our problems and were innovative in their thinking with regards to design and functionality ideas.

    The team were fantastic and always on the go, working quickly and efficiently at all times. They went out of their way to make things easier for our family, and were very respectful of our children as we still lived in our home throughout the whole process.

    We would happily use 32 Degrees Building again, they’re a great team and we’re really happy with our finished home.

    - Greg & Emma – Ground Floor Extension, Camden

  • We had 32 Degrees build a Granny Flat for my parents to live in and we found them to be very professional and just a fantastic team of people. We cannot speak highly enough of Alistair and Denny. They are lovely people and a pleasure to deal with (as was the whole team involved in our project). Nothing was a problem, they kept us informed during the whole process and the building work was completed on time.

    We couldn’t be happier with the end result! We also want to thank Janey as she was fantastic right from our initial enquiry. This was our first experience with having anything built and we would recommend 32 Degrees to anyone and would certainly use them again if the need arose. Thank you to all involved for building my parents their beautiful home.

    Granny flat Orangeville

    - Debbie – Granny Flat, Orangeville

  • “32 Degrees Building were great. Everything ran so smoothly, the work was finished a lot quicker than we expected and the team were fantastic. Nothing was ever a problem and we always knew what was going on. We love our new addition and would gladly use 32 Degrees Building again.”

    After, First Floor Addition, Bradbury (2)

    - Chris & Tony – First Floor Addition, Bradbury